





Cabine de douche d'angle Scarlet 42 po L x 42 po l x 75 po H avec base en acrylique blanc, drain d'angle et verre français, porte coulissante noir mat (sans paroi de douche)
La garantie limitée est valable pour une période de dix (10) ans. Numéro de téléphone : 1-877-GET-MAAX
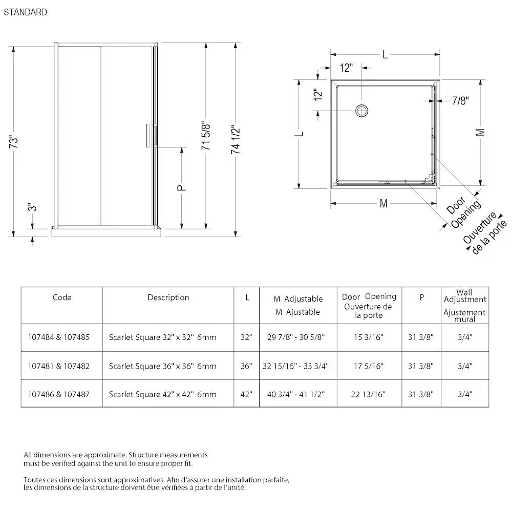
Qui a dit qu'un look luxueux ne pouvait être obtenu que dans les grands espaces ? L'ensemble de douche carré de 42 po Scarlet de MAAX pour installation en coin apportera une touche chic et classique à votre salle de bain. Cet ensemble comprend une base de douche en acrylique de haute qualité, disponible en blanc ou en noir, ainsi qu'une élégante porte de douche coulissante, disponible en cadre chromé et verre clair, cadre noir mat avec motif en verre clair ou français. En plus de son look sophistiqué et de sa fonctionnalité maximisée, cet ensemble de douche a été conçu dans un souci de facilité d'installation, ce qui en fait le choix idéal pour les projets de rénovation à faire soi-même. Complétez le look avec un magnifique ensemble mural d'installation en coin Denso en 2 pièces, facile à installer (107224-000-270-000 ou 107228-000-270-000) ! Ensemble de douche comprenant : base et porte de douche (mur de douche non inclus) La porte est livrée avec des panneaux préassemblés, la quincaillerie noir mat et les montants latéraux pour une installation rapide et facile L'extrusion magnétique et en aluminium de la porte offre une meilleure fermeture étanche et une meilleure rigidité du panneau La porte est dotée du système clip-and-push de MAAX qui permet aux roulettes inférieures de se détacher des rails de la porte et offre un accès facile pour le nettoyage Les panneaux de verre de 6 mm (1/4 po) ont le motif français directement sur le verre pour un entretien facile et sans souci Les panneaux de verre sont livrés avec la protection de verre Lotus Easy Clean pour repousser les taches de savon et d'eau pour un entretien sans souci Porte en verre trempé luxueux certifié ANSI pour votre sécurité Ouverture de porte coulissante centrale La base a un seuil bas de 3 pouces (7,62 cm) pour un accès facile Base de douche en acrylique avec un sol texturé L'ouverture du drain d'angle s'adapte aux drains à compression standard de 2 po (ensemble de drain non inclus) Tout le matériel de montage inclus Garantie limitée de 10 ans : sans souci pour les années à venir Ensemble de murs de douche d'angle compatibles recommandés Denso 2 pièces (107223-000-270-000 ou 107227-000-270-000), vendu séparément

